Shell plating is the outer-most structure on the hull of a steel or aluminum ship or boat.

Strakes

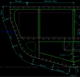
An autoCAD drawing of the various plating strakes on a convention hull.

A strake is the name given to each line of planking in a wooden vessel.[1] In modern ship construction it refers to the longitudinal run of plating covering the hull, deck and bulkhead structure. Certain specific strakes are uniquely identified:

Keel: is a special strake of the Bottom plating extending from the centerplane outboard.

Bottom: the Bottom Shell plate strakes extend from the Keel to the Bilge.

Bilge: is the plating which transitions from the more-or-less horizontal Bottom Shell to the more-or-less vertical Side Shell and is generally curved. See also Chine (boating).

Side: is the plating which extends from the Bilge strake(s) to the Shear strake.

Shear: is a special strake of the Side plating. It is the strake that connects the Side Shell to the Strength Deck.

Stringer: is a special strake of the Strength Deck plating. It is the strake that connects the Strength Deck to the Side Shell.

Strength Deck: is a special deck. It is normally the uppermost continuous deck and forms the top flange of the hull girder.

See also

References

  1. Kemp, The Oxford Companion to Ships and the Sea , p. 838 (definition of 'strake').
This article is issued from Wikipedia. The text is licensed under Creative Commons - Attribution - Sharealike. Additional terms may apply for the media files.